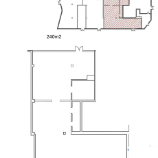
Na sprzedaż nowy lokal handlowy o pow.240,37m2 położony na parterze nowego budynku mieszkalnego w Katowicach – śródmieście/centrum
Lokal sprzedawany w stanie surowym zamkniętym.
Nowe osiedle mieszkaniowe.
Lokal z witrynami na całej szerokości lokalu od strony dwóch ulic, dwa wejścia bezkolizyjne z poziomu „0”. Witryny do poziomu posadzek. Jest możliwość podziału lokalu na dwa odrębne lokale.
Miejsca parkingowe do wynajęcia przed budynkiem na drodze gminnej – do uzgodnienia z Miejskim Zarządem Dróg i Mostów.
UWAGA! Na sprzedaż również lokale o pow.od 51m do 285m2
CENA SPRZEDAŻY BRUTTO w tym podatek VAT. Dodatkowo płatne koszty notarialne pośrednictwa
Kontakt:K&P Invest Nieruchomości tel.696-055-044
Przedstawione propozycje nie są ofertą handlową w rozumieniu przepisów prawa, lecz mają charakter informacyjny. Wszelkie dane dotyczące nieruchomości uzyskano na podstawie oświadczeń sprzedających. Zalecamy osobiste zapoznanie się ze stanem nieruchomości przed jej nabyciem
ENGLISH
For sale new retail space of area 240,37sqm located on new residential in Katowice – centrum
Retail space located on ground floor, big windows. It is possible to make two different retail spaces with two entrances.
Standard – closed shell
WARNING! Also for sale another retail spaces of area 51sqm up to 285sqm.
Price including tax . Additional cost – real estate agency fee, notary.
Tomasz Pusz
|