Na sprzedaż nowy dom wolnostojący przy granicy z Michałkowicami w Siemianowicach Śląskich
Dom sprzedawany w stanie surowym zamkniętym z oknami wraz z roletami, drzwiami wejściowymi, bramą garażową oraz dachem pokrytym dachówką!
Dom w trakcie budowy – w październiku będą montowane okna
Dom o pow.125,25m2, działka o pow.382m2,
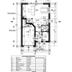
Rozkład pomieszczeń:
Parter – salon z aneksem kuchennym, miejsce na jadalnię, z salonu wyjście na taras i do ogrodu, wc, wiatrołap, kotłownia i garaż
Piętro – 4 pokoje i łazienka.
Taras i ogród od strony wschodniej i południowej
Super miejsce do mieszkania w sąsiedztwie nowe domy, szybki wjazd na DK94 i do centrum Katowic.
CENA SPRZEDAŻY BRUTTO! Kupujący nie płaci podatku PCC, dodatkowo płatne koszty notarialne i pośrednictwa.
Kontakt:K&P Invest Nieruchomości tel.696-055-044 e-mail:tpusz@kpinvest.com.pl
Przedstawione propozycje nie są ofertą handlową w rozumieniu przepisów prawa, lecz mają charakter informacyjny. Wszelkie dane dotyczące nieruchomości uzyskano na podstawie oświadczeń sprzedających. Zalecamy osobiste zapoznanie się ze stanem nieruchomości przed jej nabyciem.
Tomasz Pusz
|